г. Ульяновск, ул. Ленина, д.144 +7 (8422) 58-16-59
+7 (987) 632-16-56

ВЫ ЗДЕСЬ: Продажа квартир > ЖК "УНИВЕРСИТЕТ" > 1-комнатная квартира №36


ЖК "УНИВЕРСИТЕТ"

1-комнатная квартира №36

1 подъезд, 4 этаж
Планировка квартиры
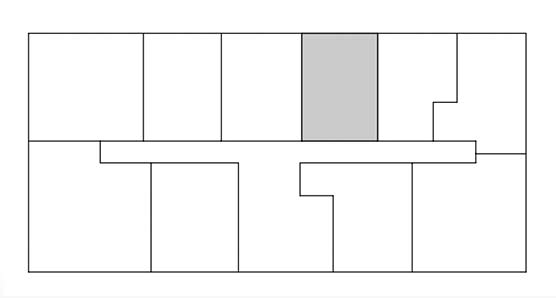
Планировка квартиры на этаже

Общая площадь 51.19 м2

1 Санузел 5,73
2 Кухня 16,76
3 Прихожая 7,76
4 Гардероб 5,73
5 Спальня 13,05
6 Лоджия 2,21

Стоимость квартиры

Цена за 1 м2: 115000 рублей

Общая стоимость квартиры: 5 886 850 рублей

Забронировать
 
Специализированный застройщик © 2017 - 2026 Все права защищены
Политика конфиденциальности
Любая информация, представленная на данном сайте, носит исключительно информационный характер и ни при каких условиях не является публичной офертой, определяемой положениями статьи 437 ГК РФ. Привлечение денежных средств, связанное с возникающим у граждан правом собственности на жилые помещения в многоквартирных домах, которые на момент привлечения денежных средств граждан не введены в эксплуатацию, осуществляются на основании договора участия в долевом строительстве в соответствии с Федеральным законом от 30.12.2004 №214-ФЗ. Внешний вид законченного строительством объекта и прилегающей территории может отличаться от представленных изображений. Политика обработки персональных данных и Согласие на обработку данных
Создание сайтов в Ульяновске
↑